Overview
- Updated On:
- 09/04/2025
- Year Built:
- -- Select --
Description
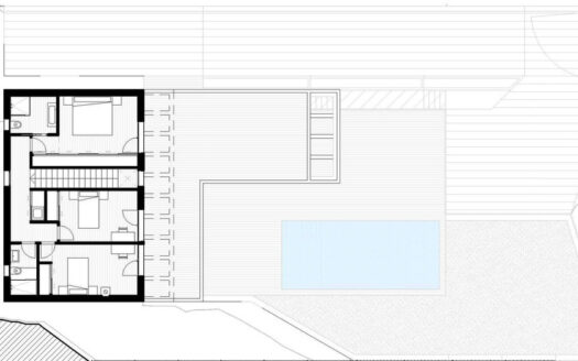
Are you looking for a lot to build your dream home?
This is your chance! You will love this spectacular PROJECT AND LICENSE for a detached single-family house. Located in Benalmadena, Malaga, this land has unbeatable views and an area of 576 m2.
If you want to experience maximum tranquility in your property do not miss this opportunity to build the house of your dreams.
Contact us now for more information!
Other Features
Beachside
Close To Golf
Close To Schools
Close To Sea
Close To Shops
Town
Urbanisation
Energy Class: A+
Energy class A+
A+A
B
C
D
E
F
G
H